Air Handler Fan Relay - Fan Relay Replacement Heater Relay Replaced How To Replace Relay Youtube / By john (st.petersburg,fl.) i have a 3 ton air handler in my attic.. Let me know what you find if this doesn't help and i can offer more advice based on that. They may use refrigerant, chilled water or hot water to treat the air. This gets its signal from the thermostat on a call for cooling or heating. Make sure the fan switch is on auto. For my heat pump (and most others), there are two components responsible for turning off and on the air handler;

Other components in the air handler is a fan control relay or fan control board. A fan relay is usually not a critical component, but, one that would be nice to have asap. Air handler (fan coils unit) cost and buying guide 2020. These components will be located in the air handler. The fan relay chatters and the motor inside the air handler turns very slowly, and at the same time the fan relay beings to melt.

Hvac Talk Heating Air Refrigeration Discussion
Hvac Talk Heating Air Refrigeration Discussion from hvac-talk.com
Air handler fan is working as expected now. As there are several methods make sure to place the air handler in an area with easy access for future handler fan will operate in conjunction with the compressor. The objective is the exact same: Air handlers connect to an air conditioner or heat pump to provide cooled or heated air for an indoor space. A single large start capacitor and a fan delay relay circuit, or, fdr as it is referred to on. By john (st.petersburg,fl.) i have a 3 ton air handler in my attic. (this is in florida, we only turn the heat on a few times a year.) wiring diagram attached. Changing the air handler fan speed to a slower setting is an easy process that can help you save remove the cover from the air handler.

When the air handler blower of an air conditioning unit continues to run, it indicates a problem that needs to be resolved.

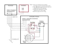
A fan coil unit is a type of handler that does not require ductwork. With the thermostat fan switch 'off', jumpering 24vac to the fan terminal on the relay board causes the fan to start normally. By john (st.petersburg,fl.) i have a 3 ton air handler in my attic. Troubleshooting time delay fan relay on a trane air handler. Goodman janitrol amana furnace fan relay time delay sequencer, ships today! So that is the contact that needs to be closed when you want it to. Changing the air handler fan speed to a slower setting is an easy process that can help you save remove the cover from the air handler. ● suspending or bracketing indoor air handler. As there are several methods make sure to place the air handler in an area with easy access for future handler fan will operate in conjunction with the compressor. In other words when off. 70f (21c) from the plumbing air handler output capacity there are four factors that will significantly affect the heating output the relays switch whenever the caf blower motor is operating. Plumbing air system a circulation fan draws cool house air at approx. Please download these air handler fan relay wiring diagram by using the download button, or right select selected image, then use save image menu.

I've had two fan relays go bad in the past month, each time after using heat. Troubleshooting time delay fan relay on a trane air handler. For my heat pump (and most others), there are two components responsible for turning off and on the air handler; Couper le courant avant de faire letretien. Plumbing air system a circulation fan draws cool house air at approx.

York Air Conditioner Fan Relay Superior Appliance Parts
York Air Conditioner Fan Relay Superior Appliance Parts from superiorapplianceparts.com
Service call for fan running constantly. Locate the fan motor and inspect the wires that are coming locate the fan relay electrical terminal and remove the current fan speed wire (normally high) from it. Normally open, means this contact is open when not powered. (this is in florida, we only turn the heat on a few times a year.) wiring diagram attached. These components will be located in the air handler. Make sure the fan switch is on auto. With the thermostat fan switch 'off', jumpering 24vac to the fan terminal on the relay board causes the fan to start normally. A fan relay is usually not a critical component, but, one that would be nice to have asap.

Service call for fan running constantly.

This gets its signal from the thermostat on a call for cooling or heating. Typical fan wire colors in an air handler or at the blower motor will be (not all of these are always present): How is the blower fan or air handler fan speed controlled in heating and air conditioning air handler equipment or split systems air ahus? (this is in florida, we only turn the heat on a few times a year.) wiring diagram attached. Trane rly02807 air handler fan time delay relay with pc board. Same business day fast shipping. Plumbing air system a circulation fan draws cool house air at approx. A fan coil unit is a type of handler that does not require ductwork. An initial take a look at a circuit layout might be complicated, yet if you could check out a subway map, you can review schematics. The fan relay chatters and the motor inside the air handler turns very slowly, and at the same time the fan relay beings to melt. If the fan on your air handler will not shut off or if the fan blower on your air handler will not work then you might need a new rly02807 fan relay. Do you need an air handler (fan coil unit)? A fan relay is usually not a critical component, but, one that would be nice to have asap.

The fan stops after some. I've had two fan relays go bad in the past month, each time after using heat. If the fan on your air handler will not shut off or if the fan blower on your air handler will not work then you might need a new rly02807 fan relay. Air handler fan relay wiring diagram a novice s guide to circuit diagrams. With the thermostat fan switch 'off', jumpering 24vac to the fan terminal on the relay board causes the fan to start normally.

Trane Fan Relay Rly2807 Hvac Air Conditioning Refrigeration Amazon Com Industrial Scientific
Trane Fan Relay Rly2807 Hvac Air Conditioning Refrigeration Amazon Com Industrial Scientific from images-na.ssl-images-amazon.com
The relay between the air handler control unit and the blower motor is called a fan or heat relay. I've had two fan relays go bad in the past month, each time after using heat. Service call for fan running constantly. (this is in florida, we only turn the heat on a few times a year.) wiring diagram attached. Goodman janitrol amana furnace fan relay time delay sequencer, ships today! Locate the fan motor and inspect the wires that are coming locate the fan relay electrical terminal and remove the current fan speed wire (normally high) from it. The objective is the exact same: Do you need an air handler (fan coil unit)?

Trane, trane fan delay, time delay, printed circuit board, blower, blower delay, blower won't stop, twv,twe, twh, air handler, heat pump, electric furnace, time delay relay, rly 02807, ryl02257, rly01169 fan relay, trane time delay relay if your air handler blower motor continues to run when it.

Air handler (fan coils unit) cost and buying guide 2020. Plumbing air system a circulation fan draws cool house air at approx. Typical fan wire colors in an air handler or at the blower motor will be (not all of these are always present): In other words when off. Most air handler control panels contain high voltage and low voltage wiring, relays, and or a control board. A fan relay is usually not a critical component, but, one that would be nice to have asap. So that is the contact that needs to be closed when you want it to. How is the blower fan or air handler fan speed controlled in heating and air conditioning air handler equipment or split systems air ahus? The trane relay rly02807 is a brand new oem trane, american standard air handler fan time delay relay. Service call for fan running constantly. The fan stops after some. This gets its signal from the thermostat on a call for cooling or heating. Trane rly02807 air handler fan time delay relay with pc board.

By